AltaStream delivers high-quality energy storage products tailored for markets such as behind-the-meter storage, commercial/industrial power, and events/entertainment. Our products range from portable, modular units to professionally installed micro-grid power plants. All designs utilize lithium battery technology with a focus on safety, reliability, and intelligent automation. We also provide the parts, training and support for those solutions.
Portable Energy Storage
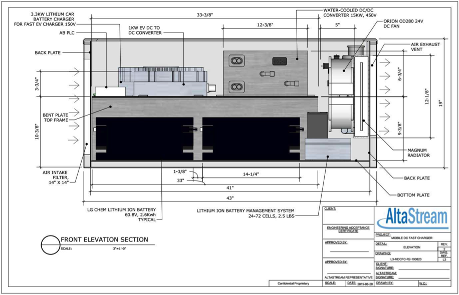
AltaStream is focused on developing a product line of portable energy storage solutions that can be used in the entertainment and movie industry. These modular, mobile power packs provide customers with the energy necessary for all their electrical equipment, rather than relying on a traditional diesel generator. The power packs produce silent, clean and efficient energy right at the location you need it. They can be rapidly re-charged, either with an AC plug, or by DC Fast Charging from another battery bank. In addition, AltaStream is introducing a Compact 15KW Portable EV Charging station for stranded EV vehicles requiring roadside assistance. Our solution enables a roadside assistance vehicle to provide fast DC charging for EV vehicles that have run out of power.


Behind the Meter Commercial Storage
Energy Storage solutions for Commercial operations focused on reducing energy costs, improving energy resiliency or adding additional energy capacity for new services. Our solutions can enable reduced demand charges, utility power augmentation, and remote power solutions.


